2360 Kittridge Ave, Colorado Springs, CO 80919
Toggle Navigation
Images
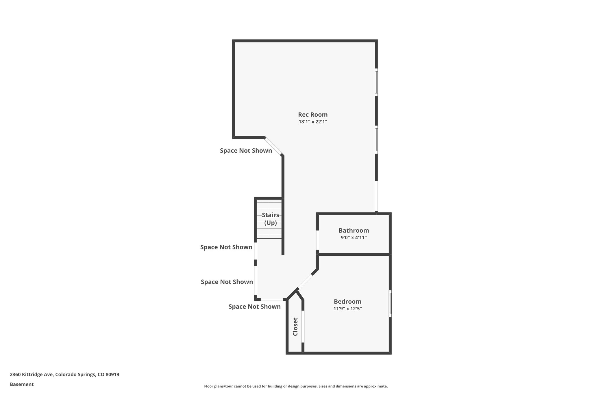
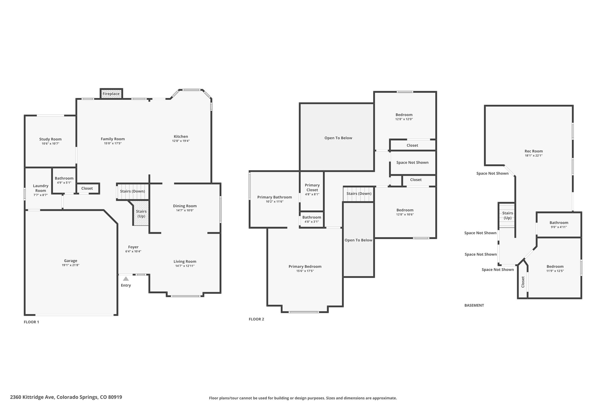
Floor Plans
3D Tour
Map
2360 Kittridge Ave
Colorado Springs, CO 80919
Scroll to Content
Images
Slideshow
Photo Grid
Hide
Previous
Next
Show more
Floor Plans
Slideshow
Photo Grid
Hide
Previous
Next
3D Tour