241 Kinnikinnick Rd
Grand Lake, CO 80447

Scroll to Content

Images

Videos

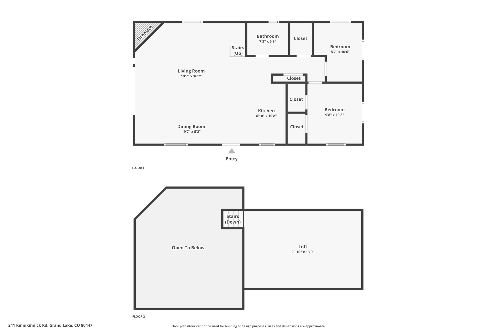
Floor Plans

3D Tour

Contact

Feel free to contact us for more details!

Rebecca Fine

Coldwell Banker Realty

+1(303) 913-3802

rebeccafinerealestate@gmail.com